Filters
For Sale
2 Bedroom Apartment for Sale in Agios Athanasios, Limassol
Enquiries
Property Description
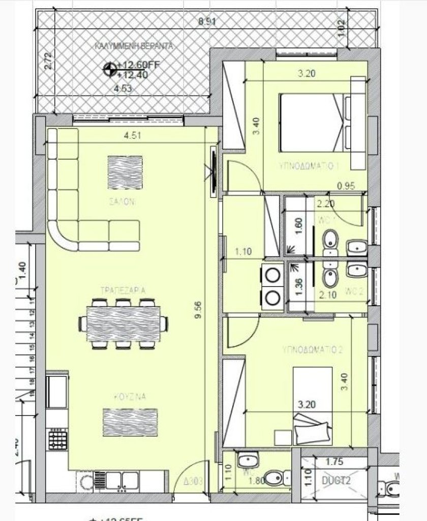
New 2 bedroom, 2 baths apartment in the project conveniently situated in the popular area of Agios Athanasios, 5 m inutes away from the city center, shopping malls, restaurants, private schools, supermarkets, banks, all amenities, and the main highway. This unit is having an internal area of 85 sqm and a covered veranda of 16 sqm. Entrance doors, passing guest toiled on the left, are leading to open plan kitchen dining and living room, and further extending living area to a spacious veranda. Bedrooms and family bathroom are separated on the left side from the living area, providing necessary privacy and peace.
This project comprises two apartment blocks and one, two, three bedrooms, and one penthouse. It has a modern design and all apartments will be constructed to the highest standards using the latest construction technologies and the finest quality building materials. They will have high-end finishes, provision of a climate control system, a provision of electrical heating, a private covered parking area, and a storage room for each flat.
Delivery April 2024
This project comprises two apartment blocks and one, two, three bedrooms, and one penthouse. It has a modern design and all apartments will be constructed to the highest standards using the latest construction technologies and the finest quality building materials. They will have high-end finishes, provision of a climate control system, a provision of electrical heating, a private covered parking area, and a storage room for each flat.
Delivery April 2024
3d Floor, Allocated parking place, Covered parking, Private Parking, Provisions for A/C, Provisions for Central Heating, Store room, Mountain view
Mortgage Calculator
Amount Financed:
Mortgage Payments:
Annual cost of Loan:
Details
City:
Agios Athanasios
Floor Number:
3
Bedrooms:
2
Bathrooms:
2
Covered Parking:
1
No. Of Floors In building:
4
Electricity Type:
Single Phase
Construction Year:
2024
Construction Type:
Concrete
Areas
Internal Area:
85m²
Covered Verandas:
16m²
Total Area:
136m²
Energy
Heating Type:
Central Heating
Cooling Type:
Autonomous Cooling System
Features
Elevator:
Mountain View:
Central heating provision:
Gym:
Split units provision:
Covered veranda:
Gated complex:
Pressurized water system:
Extra Features
Extra Features:
3d Floor, Allocated Parking Place, Covered Parking, Private Parking, Provisions For A/C, Provisions For Central Heating, Store Room, Mountain View
Details
City:
Agios Athanasios
Floor Number:
3
Bedrooms:
2
Bathrooms:
2
Covered Parking:
1
No. Of Floors In building:
4
Electricity Type:
Single Phase
Construction Year:
2024
Construction Type:
Concrete
Areas
Internal Area:
85m²
Covered Verandas:
16m²
Total Area:
136m²
Energy
Heating Type:
Central Heating
Cooling Type:
Autonomous Cooling System
Features
Elevator:
Mountain View:
Central heating provision:
Gym:
Split units provision:
Covered veranda:
Gated complex:
Pressurized water system:
Extra Features
Extra Features:
3d Floor, Allocated Parking Place, Covered Parking, Private Parking, Provisions For A/C, Provisions For Central Heating, Store Room, Mountain View
