Filters
For Sale
2 Bedroom Apartment for Sale in Piraeus, Athens
Enquiries
Property Description
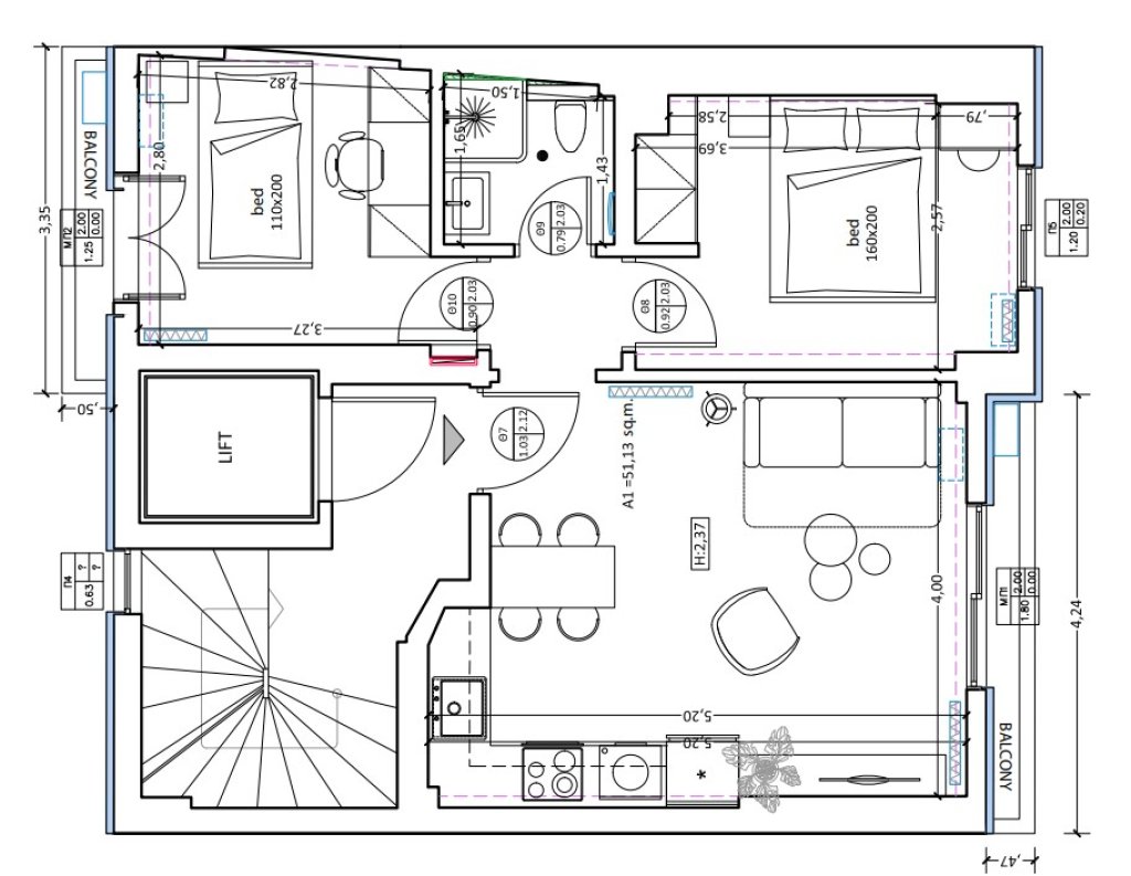
This 2-bedroom apartment is part of the new 7-storey apartment building in Pireaus, just 12 km away from Athens city center. The apartment occupies 1st floor and the size of the internal living area is 51.1 sqm with an additional 3.66 sqm of covered veranda. Bus station, pharmacies, supermarkets, the University of Piraeus, and Msrina Zeas are all within walking distance from the location of this new project.
The entrance in the apartment is leading straight to the living, dining, and kitchen area, while the bedrooms and the bathroom are located on the left from the entrance.
This project is expected to be finished in September 2022.
The entrance in the apartment is leading straight to the living, dining, and kitchen area, while the bedrooms and the bathroom are located on the left from the entrance.
This project is expected to be finished in September 2022.
1st Floor, Aluminium shutters, Balcony, Elevator, Internet Connection, Provisions for A/C, Rental potential
Mortgage Calculator
Amount Financed:
Mortgage Payments:
Annual cost of Loan:
Details
City:
Piraeus
Floor Number:
1
Bedrooms:
2
Bathrooms:
1
Construction Year:
2022
Features
Elevator:
Split units provision:
Internet access:
Extra Features
Extra Features:
1st Floor, Aluminium Shutters, Balcony, Elevator, Internet Connection, Provisions For A/C, Rental Potential
Details
City:
Piraeus
Floor Number:
1
Bedrooms:
2
Bathrooms:
1
Construction Year:
2022
Features
Elevator:
Split units provision:
Internet access:
Extra Features
Extra Features:
1st Floor, Aluminium Shutters, Balcony, Elevator, Internet Connection, Provisions For A/C, Rental Potential
