Filters
For Sale
2 Bedroom Penthouse for Sale in Agios Tychonas, Limassol
Enquiries
Property Description
New stunning project in one of the most sought-after areas in Limassol, Agios Tychonas. The project features 16 apartments, laid out on 4 floors, characterized by spacious layouts, modern and functional design, and a high standard of finish. The project is located in tranquil surroundings and is just 2 minutes drive from Four Seasons Hotel. Some of the major benefits of this project as well are a common swimming pool and stunning sea views. Every unit is having laminated parquet in each room, quality ceramic tiles in bathrooms, double glazing aluminum windows, provisions for A/C, European brands sanitary ware, high-quality kitchen cabinets and wardrobes and artificial granite worktops.
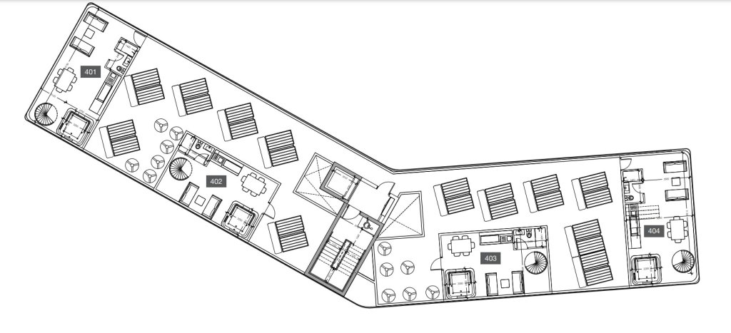
This luxurious 2 bedroom penthouse has an internal covered area of 83.8 sqm with an additional 14.3 sqm of the covered veranda and 43.1 sqm roof terrace. The entrance is leading to open plan living, dining and kitchen area. Veranda doors in the living area are leading to the spacious covered veranda and on the left is the corridor leading to bedrooms and bathrooms. The Master bedroom features an en-suite bathroom.
This luxurious 2 bedroom penthouse has an internal covered area of 83.8 sqm with an additional 14.3 sqm of the covered veranda and 43.1 sqm roof terrace. The entrance is leading to open plan living, dining and kitchen area. Veranda doors in the living area are leading to the spacious covered veranda and on the left is the corridor leading to bedrooms and bathrooms. The Master bedroom features an en-suite bathroom.
Allocated parking place, Communal Swimming Pool, Covered parking>Parking, Covered Veranda/Balcony, Double Glazed Windows, En suite bathroom, Laminated Parquet Floor, Modern design, Provisions for A/C, Sea Views, Storage Room
Mortgage Calculator
Amount Financed:
Mortgage Payments:
Annual cost of Loan:
Details
City:
Agios Tychon
Bedrooms:
2
Bathrooms:
3
Floor Type:
Parquet
Areas
Internal Area:
98m²
Features
Common Swimming Pool:
Storage Space:
Double Glazing:
En suite:
Split units provision:
Covered veranda:
Extra Features
Extra Features:
Allocated Parking Place, Communal Swimming Pool, Covered Parking>Parking, Covered Veranda/Balcony, Double Glazed Windows, En Suite Bathroom, Laminated Parquet Floor, Modern Design, Provisions For A/C, Sea Views, Storage Room
Details
City:
Agios Tychon
Bedrooms:
2
Bathrooms:
3
Floor Type:
Parquet
Areas
Internal Area:
98m²
Features
Common Swimming Pool:
Storage Space:
Double Glazing:
En suite:
Split units provision:
Covered veranda:
Extra Features
Extra Features:
Allocated Parking Place, Communal Swimming Pool, Covered Parking>Parking, Covered Veranda/Balcony, Double Glazed Windows, En Suite Bathroom, Laminated Parquet Floor, Modern Design, Provisions For A/C, Sea Views, Storage Room
