Filters
For Sale
2 Bedroom Penthouse For Sale in Mesa Geitonia, Limassol
Enquiries
Property Description
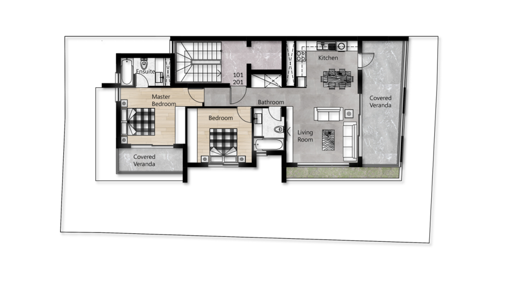
This 2-bedroom penthouse offers a modern living experience in a central residential area, combining functional interior spaces with an exclusive outdoor lifestyle. The property features a well-designed open-plan living and dining area with a contemporary kitchen, creating a comfortable environment for both daily living and entertaining.
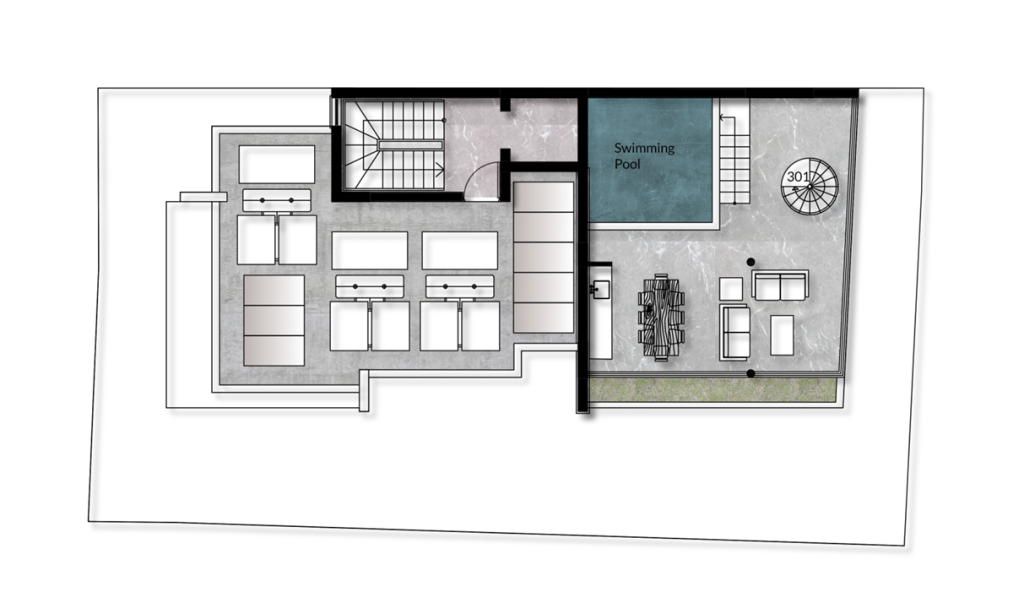
A standout feature is the private roof garden of 50 m², complete with a private swimming pool, providing a unique space for relaxation and social gatherings. The apartment benefits from excellent natural light and a practical layout, maximizing usability and comfort.
Situated in a well-connected area, the property offers easy access to key amenities, business districts, and main road networks, making it suitable for both residential use and investment.
A standout feature is the private roof garden of 50 m², complete with a private swimming pool, providing a unique space for relaxation and social gatherings. The apartment benefits from excellent natural light and a practical layout, maximizing usability and comfort.
Situated in a well-connected area, the property offers easy access to key amenities, business districts, and main road networks, making it suitable for both residential use and investment.
2-bedroom penthouse
Private roof garden (50 m²)
Private swimming pool
Open-plan kitchen and living area
Covered veranda
Storage room (5 m²)
Covered parking
Top floor unit
Modern design
Private roof garden (50 m²)
Private swimming pool
Open-plan kitchen and living area
Covered veranda
Storage room (5 m²)
Covered parking
Top floor unit
Modern design
Mortgage Calculator
Amount Financed:
Mortgage Payments:
Annual cost of Loan:
Details
City:
Mesa Geitonia
Apartment:
Penthouse
Construction Stage:
Off-plan
Floor Number:
3
Bedrooms:
2
Bathrooms:
2
Furnished:
Unfurnished
Kitchen Type:
Open Plan
Covered Parking:
1
No. Of Floors In building:
3
Electricity Type:
Single Phase
Construction Year:
2028
Construction Type:
Concrete
Areas
Internal Area:
81m²
Covered Verandas:
21m²
Covered:
102m²
Uncovered Area:
50m²
Total Area:
157m²
Roof Garden Area:
50m²
Energy
Heating Type:
Autonomous Heating System
Cooling Type:
Autonomous Cooling System
Features
Secure Door:
Private Swimming Pool:
Storage Space:
En suite:
Door Phone:
En suite shower:
Split units provision:
Covered veranda:
Roof garden:
Extra Features
Extra Features:
2-bedroom Penthouse
Private Roof Garden (50 M²)
Private Swimming Pool
Open-plan Kitchen And Living Area
Covered Veranda
Storage Room (5 M²)
Covered Parking
Top Floor Unit
Modern Design
Details
City:
Mesa Geitonia
Apartment:
Penthouse
Construction Stage:
Off-plan
Floor Number:
3
Bedrooms:
2
Bathrooms:
2
Furnished:
Unfurnished
Kitchen Type:
Open Plan
Covered Parking:
1
No. Of Floors In building:
3
Electricity Type:
Single Phase
Construction Year:
2028
Construction Type:
Concrete
Areas
Internal Area:
81m²
Covered Verandas:
21m²
Covered:
102m²
Uncovered Area:
50m²
Total Area:
157m²
Roof Garden Area:
50m²
Energy
Heating Type:
Autonomous Heating System
Cooling Type:
Autonomous Cooling System
Features
Secure Door:
Private Swimming Pool:
Storage Space:
En suite:
Door Phone:
En suite shower:
Split units provision:
Covered veranda:
Roof garden:
Extra Features
Extra Features:
2-bedroom Penthouse
Private Roof Garden (50 M²)
Private Swimming Pool
Open-plan Kitchen And Living Area
Covered Veranda
Storage Room (5 M²)
Covered Parking
Top Floor Unit
Modern Design
