Filters
For Sale
2 bedrooms Apartment for Sale in Neapolis, Limassol
Enquiries
Property Description
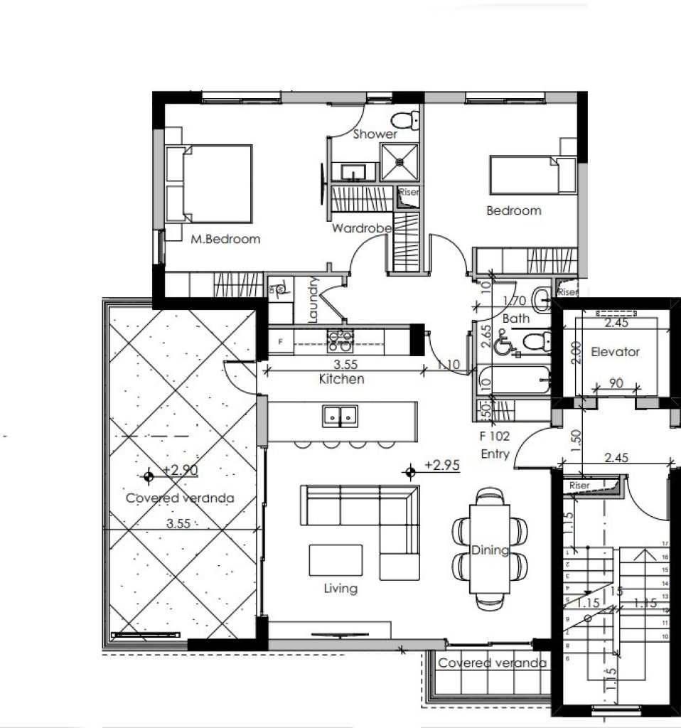
Recently completed 2 bedroom apartment for sale in a residential area of Neapolis, near supermarkets, coffee shops, bars, restaurants schools and walking distance to the beach.
This apartment is on the 1st floor, it has 96 sqm internal areas, 31 sqm covered balcony and comes with storage room & parking. It consists of an open plan kitchen, dining,  and living area that is expanding further to a spacious covered veranda and 2 bedrooms and a family bathroom. The Master bedroom enjoys an en-suite bathroom.
This apartment is on the 1st floor, it has 96 sqm internal areas, 31 sqm covered balcony and comes with storage room & parking. It consists of an open plan kitchen, dining,  and living area that is expanding further to a spacious covered veranda and 2 bedrooms and a family bathroom. The Master bedroom enjoys an en-suite bathroom.
1st Floor, Covered parking>Parking, Covered Veranda/Balcony, Elevator, Storage Room
Mortgage Calculator
Amount Financed:
Mortgage Payments:
Annual cost of Loan:
Details
City:
Neapolis
Floor Number:
1
Bedrooms:
2
Bathrooms:
2
Areas
Internal Area:
127m²
Features
Elevator:
Storage Space:
Covered veranda:
Extra Features
Extra Features:
1st Floor, Covered Parking>Parking, Covered Veranda/Balcony, Elevator, Storage Room
Details
City:
Neapolis
Floor Number:
1
Bedrooms:
2
Bathrooms:
2
Areas
Internal Area:
127m²
Features
Elevator:
Storage Space:
Covered veranda:
Extra Features
Extra Features:
1st Floor, Covered Parking>Parking, Covered Veranda/Balcony, Elevator, Storage Room
