Filters
For Sale
3 Bedroom Apartment for Sale in Mesa Geitonia, Limassol
Enquiries
Property Description
3 bedroom, 3 bathroom apartment for sale in a new building project in the popular residential area of Mesa Geitonia. This area of Limassol is popular among young families, professionals, and individuals with schools, shops, supermarkets, parks, coffee shops, banks and other important amenities nearby. It is a prime location but in a quiet neighborhood. This new project is characterized by a comfortable and elegant interior combined with a contemporary building design. It is 4 storey building with a total of 6 apartments, 2 bedrooms and 3 bedroom units. The apartments are fully functional with living space used to a maximum.
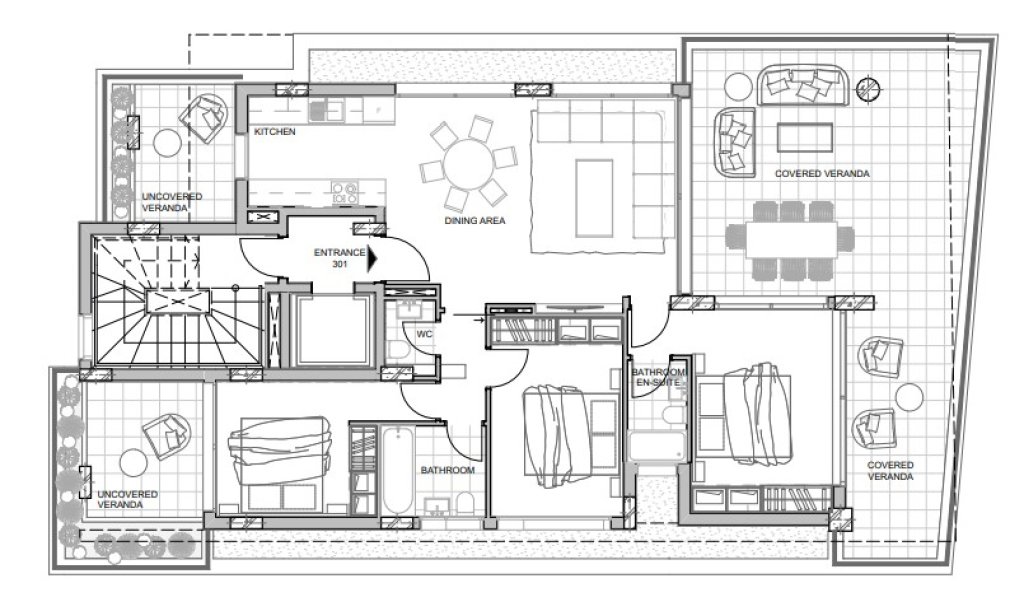
From the entrance, on the left is expanding spacious open plan kitchen, dining and living area, and extending further to a large covered veranda. From the living area on the right is the entrance to the corridor leading to 2 bedrooms, a guest toilet, and a family bathroom, and also on the right from the living area is the entrance to the master bedroom with en-suite shower.
The internal covered area of the apartment is 105 sqm, with a covered veranda of 46 sqm and 30 sqm uncovered veranda. This unit is on the 3rd floor, and it is coming with a store room and covered parking.
From the entrance, on the left is expanding spacious open plan kitchen, dining and living area, and extending further to a large covered veranda. From the living area on the right is the entrance to the corridor leading to 2 bedrooms, a guest toilet, and a family bathroom, and also on the right from the living area is the entrance to the master bedroom with en-suite shower.
The internal covered area of the apartment is 105 sqm, with a covered veranda of 46 sqm and 30 sqm uncovered veranda. This unit is on the 3rd floor, and it is coming with a store room and covered parking.
Central Location, Covered parking>Parking, Elevator, Floor Apartment, Master Bed En-Suite, Storage Room
Mortgage Calculator
Amount Financed:
Mortgage Payments:
Annual cost of Loan:
Details
City:
Mesa Geitonia
Apartment:
Whole Floor Apartment
Bedrooms:
3
Bathrooms:
3
Areas
Internal Area:
151m²
Features
Elevator:
Storage Space:
Extra Features
Extra Features:
Central Location, Covered Parking>Parking, Elevator, Floor Apartment, Master Bed En-Suite, Storage Room
Details
City:
Mesa Geitonia
Apartment:
Whole Floor Apartment
Bedrooms:
3
Bathrooms:
3
Areas
Internal Area:
151m²
Features
Elevator:
Storage Space:
Extra Features
Extra Features:
Central Location, Covered Parking>Parking, Elevator, Floor Apartment, Master Bed En-Suite, Storage Room
