Filters
For Sale
3 Bedroom House For Sale in Agios Tychonas, Limassol
Enquiries
Property Description
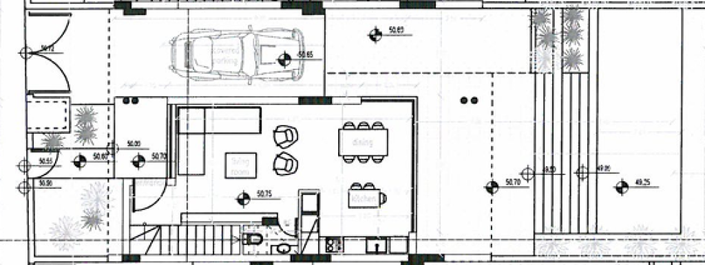
This modern detached villa offers a high standard of living with a functional design and quality finishes throughout. The property features an open-plan living, dining, and kitchen area, complemented by large openings that provide natural light and seamless access to the outdoor spaces.
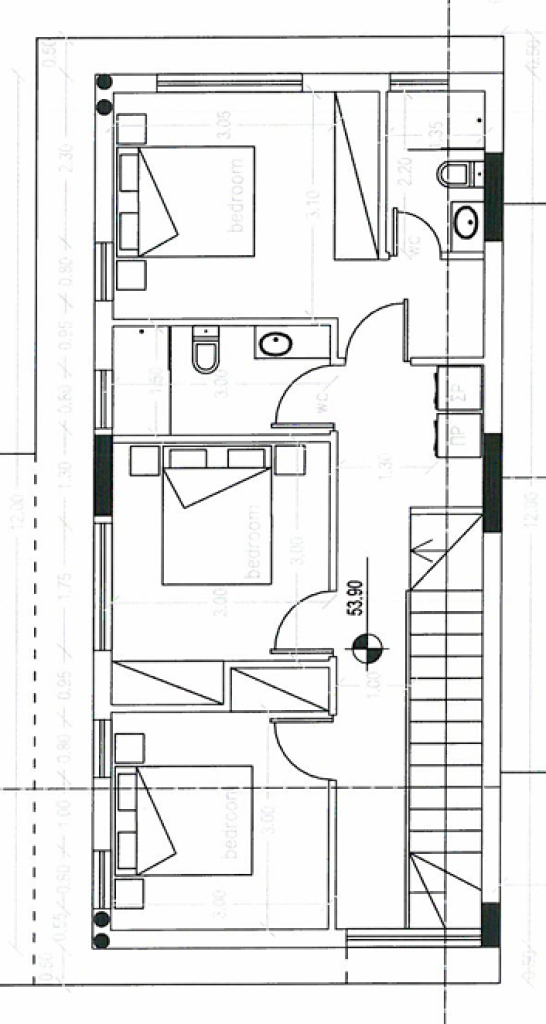
The residence includes spacious bedrooms designed for comfort and privacy, while the outdoor area features a private swimming pool and landscaped garden, ideal for relaxation and entertaining.
Built with contemporary specifications and energy-efficient features, the property is located in a desirable residential area with easy access to amenities, making it suitable for both private living and investment.
The residence includes spacious bedrooms designed for comfort and privacy, while the outdoor area features a private swimming pool and landscaped garden, ideal for relaxation and entertaining.
Built with contemporary specifications and energy-efficient features, the property is located in a desirable residential area with easy access to amenities, making it suitable for both private living and investment.
A/C Provision
Dishwasher Provision
Guest Toilet
Kitchen
Water Tank
Covered Parking
Electric Gate Provision
Fitted Wardrobes
Heat Insulation Aluminium
Swimming Pool
Yard
Covered Veranda
Electric Heating Provision
Internet Provision
Solar System Provision
Uncovered Parking
Dishwasher Provision
Guest Toilet
Kitchen
Water Tank
Covered Parking
Electric Gate Provision
Fitted Wardrobes
Heat Insulation Aluminium
Swimming Pool
Yard
Covered Veranda
Electric Heating Provision
Internet Provision
Solar System Provision
Uncovered Parking
Mortgage Calculator
Amount Financed:
Mortgage Payments:
Annual cost of Loan:
Details
City:
Agios Tychon
House:
Detached House
Construction Stage:
Off-plan
Bedrooms:
3
Bathrooms:
3
Furnished:
Unfurnished
Kitchen Type:
Open Plan
Covered Parking:
1
Uncovered Parking:
1
Construction Year:
2028
Construction Type:
Concrete
Areas
Covered Verandas:
19m²
Uncovered Verandas:
31m²
Covered:
119m²
Plot Area:
335m²
Energy
Heating Type:
Autonomous Heating System
Cooling Type:
Autonomous Cooling System
Features
Secure Door:
Private Swimming Pool:
Storage Space:
Fitted kitchen:
Door Phone:
Split units provision:
Covered veranda:
Uncovered veranda:
Electric Garage:
Extra Features
Extra Features:
A/C Provision
Dishwasher Provision
Guest Toilet
Kitchen
Water Tank
Covered Parking
Electric Gate Provision
Fitted Wardrobes
Heat Insulation Aluminium
Swimming Pool
Yard
Covered Veranda
Electric Heating Provision
Internet Provision
Solar System Provision
Uncovered Parking
Details
City:
Agios Tychon
House:
Detached House
Construction Stage:
Off-plan
Bedrooms:
3
Bathrooms:
3
Furnished:
Unfurnished
Kitchen Type:
Open Plan
Covered Parking:
1
Uncovered Parking:
1
Construction Year:
2028
Construction Type:
Concrete
Areas
Covered Verandas:
19m²
Uncovered Verandas:
31m²
Covered:
119m²
Plot Area:
335m²
Energy
Heating Type:
Autonomous Heating System
Cooling Type:
Autonomous Cooling System
Features
Secure Door:
Private Swimming Pool:
Storage Space:
Fitted kitchen:
Door Phone:
Split units provision:
Covered veranda:
Uncovered veranda:
Electric Garage:
Extra Features
Extra Features:
A/C Provision
Dishwasher Provision
Guest Toilet
Kitchen
Water Tank
Covered Parking
Electric Gate Provision
Fitted Wardrobes
Heat Insulation Aluminium
Swimming Pool
Yard
Covered Veranda
Electric Heating Provision
Internet Provision
Solar System Provision
Uncovered Parking
