Filters
For Sale
3 Bedroom House for Sale in Deryneia, Famagusta
Enquiries
Property Description
3 bedroom house with a basement, located in Deryneia, Famagusta.
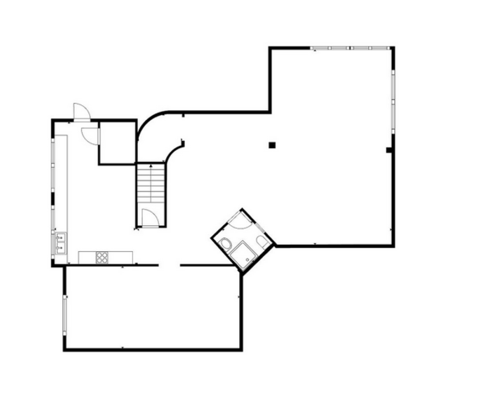
The ground floor comprised of an open plan living - dining - siting area, a kitchen with an every day dining area, a laundry area, a guest toilet with an internal staircase that leads to the upper floor. The first floor consists of an office, a bathroom, and three bedrooms of which the main one has en - suite.
The basement consists of a storage area, parking spot and a bathroom in addition, externally the asset has covered and uncovered verandas.
The ground floor comprised of an open plan living - dining - siting area, a kitchen with an every day dining area, a laundry area, a guest toilet with an internal staircase that leads to the upper floor. The first floor consists of an office, a bathroom, and three bedrooms of which the main one has en - suite.
The basement consists of a storage area, parking spot and a bathroom in addition, externally the asset has covered and uncovered verandas.
Mortgage Calculator
Amount Financed:
Mortgage Payments:
Annual cost of Loan:
Details
City:
Deryneia
House:
Detached House
Bedrooms:
3
Bathrooms:
2
Furnished:
Unfurnished
Construction Year:
1990
Construction Type:
Concrete
Areas
Internal Area:
321m²
Plot Area:
520m²
Energy
Heating Type:
Autonomous Heating System
Cooling Type:
Autonomous Cooling System
Details
City:
Deryneia
House:
Detached House
Bedrooms:
3
Bathrooms:
2
Furnished:
Unfurnished
Construction Year:
1990
Construction Type:
Concrete
Areas
Internal Area:
321m²
Plot Area:
520m²
Energy
Heating Type:
Autonomous Heating System
Cooling Type:
Autonomous Cooling System
