Filters
For Sale
3 Bedroom House for Sale in Paphos
Enquiries
Property Description
3 bedroom, 4 baths villa for sale is a part of a new project in Paphos, near Kings Avenue Mall. The project consists of apartment building, with a total of 14 units and this amazing villa, and it is located in one of the most popular residential areas of Paphos. The project if featuring covered parking for tenants, a communal swimming pool, a jacuzzi and a playground.
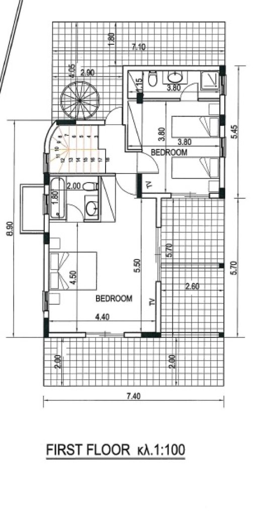
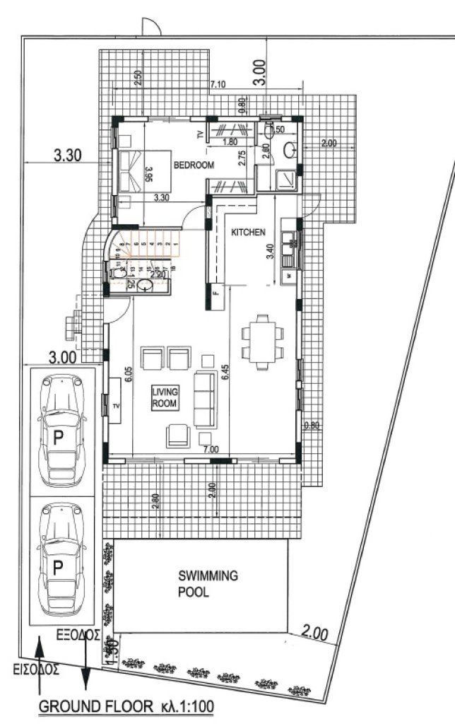
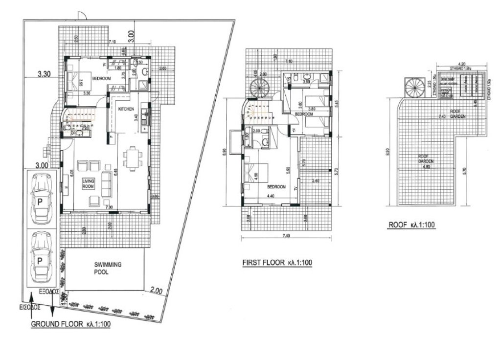
This 2 floors villa is featuring a swimming pool (optional), 2 private parking spaces, and a roof garden. Total covered indoor area is 155 sqm with 30 sqm of the covered veranda and the plot size is 355 sqm.
The ground floor is consisting of open plan kitchen, dining and living area, one bedroom with en-suite bathroom and a guest toilet. The veranda door is leading outside to the covered veranda and the swimming pool. On the first floor are 2 bedrooms, both featuring en-suite bathrooms and exit to covered balconies. From the first floor, spiral stairs are leading up to a fantastic roof garden, perfect for entertaining and leisure.
The completion of the project is planned for March of 2024.
This 2 floors villa is featuring a swimming pool (optional), 2 private parking spaces, and a roof garden. Total covered indoor area is 155 sqm with 30 sqm of the covered veranda and the plot size is 355 sqm.
The ground floor is consisting of open plan kitchen, dining and living area, one bedroom with en-suite bathroom and a guest toilet. The veranda door is leading outside to the covered veranda and the swimming pool. On the first floor are 2 bedrooms, both featuring en-suite bathrooms and exit to covered balconies. From the first floor, spiral stairs are leading up to a fantastic roof garden, perfect for entertaining and leisure.
The completion of the project is planned for March of 2024.
Ceramic Floor, Covered Veranda/Balcony, Double Glazed Windows, En-suite WC/Shower, Granite Worktops, Master Bed En-Suite, Pressurized Water System, Private parking, Private Swimming Pool, Provisions for A/C, Provisions for Central Heating
Mortgage Calculator
Amount Financed:
Mortgage Payments:
Annual cost of Loan:
Details
City:
Kato Paphos
House:
Mansion Villa
Bedrooms:
3
Bathrooms:
4
Kitchen Type:
Open Plan
Construction Year:
2024
Construction Type:
Concrete
Areas
Internal Area:
155m²
Covered Verandas:
30m²
Plot Area:
355m²
Energy
Heating Type:
Central Heating
Features
Private Swimming Pool:
Double Glazing:
En suite shower:
Central heating provision:
Split units provision:
Covered veranda:
Pressurized water system:
Extra Features
Extra Features:
Ceramic Floor, Covered Veranda/Balcony, Double Glazed Windows, En-suite WC/Shower, Granite Worktops, Master Bed En-Suite, Pressurized Water System, Private Parking, Private Swimming Pool, Provisions For A/C, Provisions For Central Heating
Details
City:
Kato Paphos
House:
Mansion Villa
Bedrooms:
3
Bathrooms:
4
Kitchen Type:
Open Plan
Construction Year:
2024
Construction Type:
Concrete
Areas
Internal Area:
155m²
Covered Verandas:
30m²
Plot Area:
355m²
Energy
Heating Type:
Central Heating
Features
Private Swimming Pool:
Double Glazing:
En suite shower:
Central heating provision:
Split units provision:
Covered veranda:
Pressurized water system:
Extra Features
Extra Features:
Ceramic Floor, Covered Veranda/Balcony, Double Glazed Windows, En-suite WC/Shower, Granite Worktops, Master Bed En-Suite, Pressurized Water System, Private Parking, Private Swimming Pool, Provisions For A/C, Provisions For Central Heating
