Filters
For Sale
3 Bedroom House for sale in Souni, Limassol
Enquiries
Property Description
Set in a peaceful environment among pine trees and overlooking the Akrotiri Coast line just 5 minutes’ drive from the Limassol – Paphos Highway
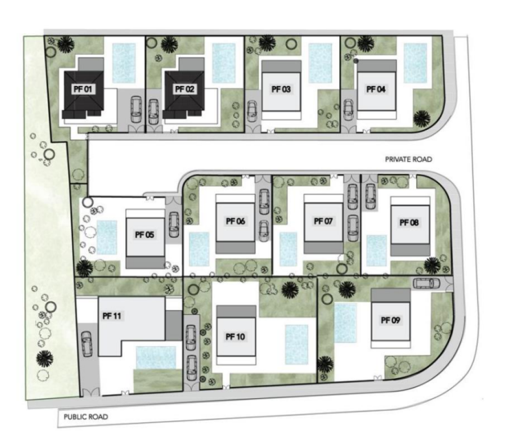
The project consists of 11 detached 2 Bedroom/ 3 Bedroom/ 4 Bedroom Houses
Each House boasts a private garden, private parking, terraces and the option to install a swimming pool.
Residents benefit from the picturesque landscape and partial sea view.
The contemporary design, the privacy, and the surrounding nature make it the ideal place for you to create a lovely home away from the city hustle.
Plots from 281 sqm to 484 sqm
Covered indoor 100 m2 plus verandas and covered garage
Contemporary features and design.
Optional Swimming Pool
Energy Efficiency A
The project consists of 11 detached 2 Bedroom/ 3 Bedroom/ 4 Bedroom Houses
Each House boasts a private garden, private parking, terraces and the option to install a swimming pool.
Residents benefit from the picturesque landscape and partial sea view.
The contemporary design, the privacy, and the surrounding nature make it the ideal place for you to create a lovely home away from the city hustle.
Plots from 281 sqm to 484 sqm
Covered indoor 100 m2 plus verandas and covered garage
Contemporary features and design.
Optional Swimming Pool
Energy Efficiency A
Mortgage Calculator
Amount Financed:
Mortgage Payments:
Annual cost of Loan:
Details
City:
Souni
House:
Detached House
Construction Stage:
Under Construction
Bedrooms:
3
Furnished:
Unfurnished
Kitchen Type:
Open Plan
Construction Year:
2025
Construction Type:
Concrete
Areas
Internal Area:
120m²
Covered Verandas:
60m²
Plot Area:
321m²
Energy
Heating Type:
Autonomous Heating System
Heating Medium:
Underfloor Heating
Cooling Type:
Autonomous Cooling System
Energy Efficiency Grade:
A
Features
Mountain View:
Double Glazing:
En suite:
Cul de sac:
Central heating provision:
Split units provision:
Covered veranda:
Pressurized water system:
Photovoltaic panels:
Garden:
Details
City:
Souni
House:
Detached House
Construction Stage:
Under Construction
Bedrooms:
3
Furnished:
Unfurnished
Kitchen Type:
Open Plan
Construction Year:
2025
Construction Type:
Concrete
Areas
Internal Area:
120m²
Covered Verandas:
60m²
Plot Area:
321m²
Energy
Heating Type:
Autonomous Heating System
Heating Medium:
Underfloor Heating
Cooling Type:
Autonomous Cooling System
Energy Efficiency Grade:
A
Features
Mountain View:
Double Glazing:
En suite:
Cul de sac:
Central heating provision:
Split units provision:
Covered veranda:
Pressurized water system:
Photovoltaic panels:
Garden:
