Filters
For Sale
4 Bedroom Apartment for Sale in Kolonaki, Athens
Enquiries
Property Description
A luxury 4 - bedroom city apartment for sale in Kolonaki, one of the prime areas in Athens, occupies the 3rd & 4th floors, and features a fully equipped kitchen, high – end home technologies, selected furnishing, and an engaging atmosphere.
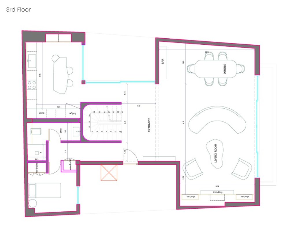
On the lower level, the entrance door is leading to the lobby from where on the left side are expanding open-plan living and dining areas. On the left side is a single bedroom/office, guest toilet, and kitchen. From the lobby, the stairs are leading to the upper level where are 3 bedrooms all featuring en-suite bathrooms.
This apartment is beautifully restored with the potential buyer having the opportunity to select the furnishing, giving the home a customized, personalized outcome.
The delivery date for this project is October 2022.
On the lower level, the entrance door is leading to the lobby from where on the left side are expanding open-plan living and dining areas. On the left side is a single bedroom/office, guest toilet, and kitchen. From the lobby, the stairs are leading to the upper level where are 3 bedrooms all featuring en-suite bathrooms.
This apartment is beautifully restored with the potential buyer having the opportunity to select the furnishing, giving the home a customized, personalized outcome.
The delivery date for this project is October 2022.
En suite bathroom, Fully Fitted/Equipped Kitchen, Fully Furnished, Recently renovated apartment
Mortgage Calculator
Amount Financed:
Mortgage Payments:
Annual cost of Loan:
Details
City:
Kolonaki - Lykavittos
Bedrooms:
4
Bathrooms:
4
Furnished:
Fully Furnished
Areas
Internal Area:
248m²
Features
Fitted kitchen:
En suite:
Extra Features
Extra Features:
En Suite Bathroom, Fully Fitted/Equipped Kitchen, Fully Furnished, Recently Renovated Apartment
Details
City:
Kolonaki - Lykavittos
Bedrooms:
4
Bathrooms:
4
Furnished:
Fully Furnished
Areas
Internal Area:
248m²
Features
Fitted kitchen:
En suite:
Extra Features
Extra Features:
En Suite Bathroom, Fully Fitted/Equipped Kitchen, Fully Furnished, Recently Renovated Apartment
