Filters
For Sale
4 Bedroom House with a basement for Sale in Lysos, Paphos
Enquiries
Property Description
4 bedroom house with a basement located in Lysos, Paphos.
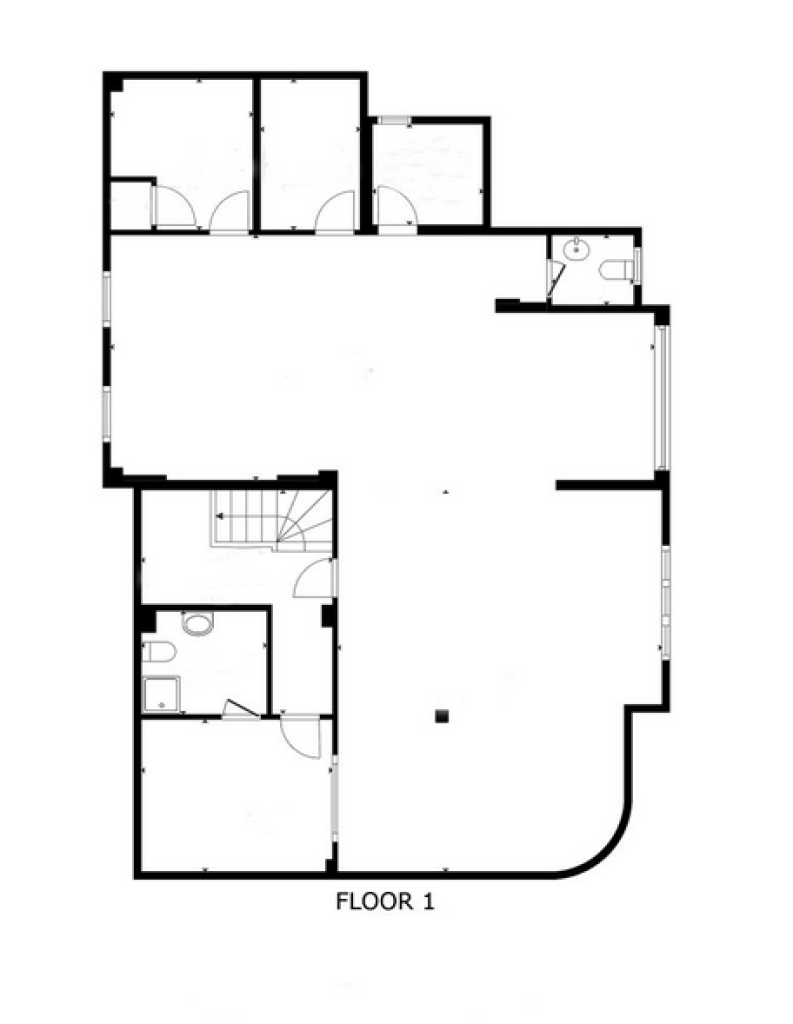
The ground floor consists of a sitting room, dining room, kitchen, guest toilet, storage room and one bedroom (en-suite with shower).
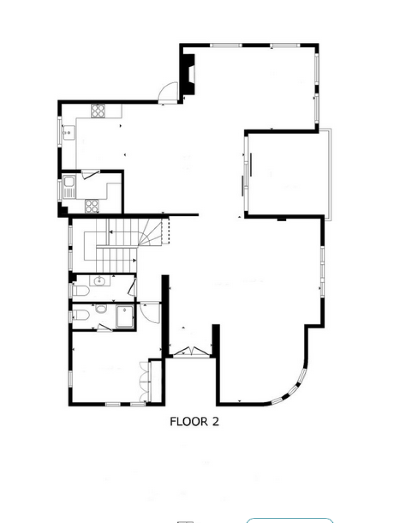
The first floor comprises of three bedrooms (of which the main bedroom is en suite with a bathroom) and a family bathroom.
Furthermore the property offers a basement which consists of one room (en-suite with shower), storage area and parking.
Ceramic floors, aluminium double glazed windows, LPG central heating are some of the features of the property.
Externally the plot is landscaped with mature gardens and is fenced.
The ground floor consists of a sitting room, dining room, kitchen, guest toilet, storage room and one bedroom (en-suite with shower).
The first floor comprises of three bedrooms (of which the main bedroom is en suite with a bathroom) and a family bathroom.
Furthermore the property offers a basement which consists of one room (en-suite with shower), storage area and parking.
Ceramic floors, aluminium double glazed windows, LPG central heating are some of the features of the property.
Externally the plot is landscaped with mature gardens and is fenced.
Mortgage Calculator
Amount Financed:
Mortgage Payments:
Annual cost of Loan:
Details
City:
Lysos
House:
Detached House
Construction Stage:
Resale
Bedrooms:
4
Bathrooms:
4
Furnished:
Unfurnished
Construction Year:
2012
Construction Type:
Concrete
Areas
Internal Area:
234m²
Plot Area:
771m²
Energy
Heating Type:
Autonomous Heating System
Cooling Type:
Autonomous Cooling System
Features
Storage Space:
Double Glazing:
En suite:
Basement:
Covered veranda:
Pressurized water system:
Garden:
Details
City:
Lysos
House:
Detached House
Construction Stage:
Resale
Bedrooms:
4
Bathrooms:
4
Furnished:
Unfurnished
Construction Year:
2012
Construction Type:
Concrete
Areas
Internal Area:
234m²
Plot Area:
771m²
Energy
Heating Type:
Autonomous Heating System
Cooling Type:
Autonomous Cooling System
Features
Storage Space:
Double Glazing:
En suite:
Basement:
Covered veranda:
Pressurized water system:
Garden:
