Filters
For Sale
4 Bedroom Villa For Sale in Germasogeia, Limassol
Enquiries
Property Description
This luxury 4-bedroom villa is located in the prestigious Paniotis area of Germasogeia, Limassol, offering panoramic sea and city views in a quiet, upscale residential setting. The property is part of an exclusive boutique development comprising only two villas, designed for privacy and modern family living.
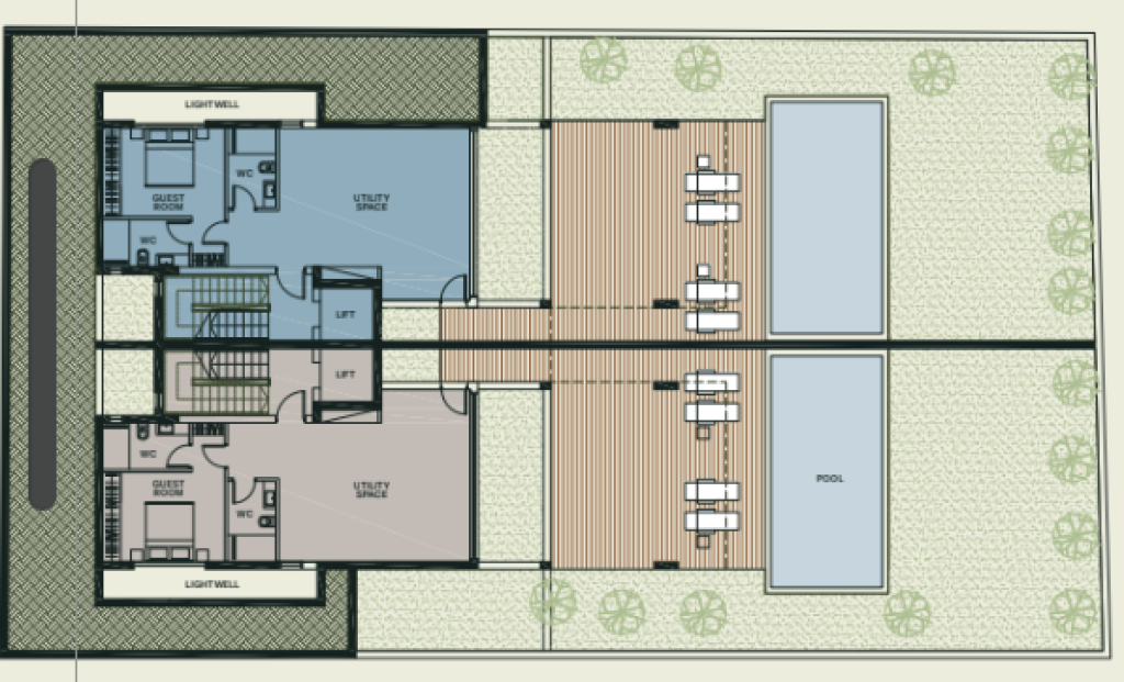
The villa is designed as a vertical residence spanning five levels, featuring spacious interiors, high ceilings, and large glazing that allows for abundant natural light. The layout creates a seamless flow between indoor and outdoor spaces, with private verandas, a landscaped garden, and a swimming pool, ideal for both relaxation and entertaining.
Built with high-end specifications and energy-efficient design, the property includes a private lift, premium finishes, and modern systems, making it a standout luxury residence in one of Limassol’s most sought-after areas.
The villa is designed as a vertical residence spanning five levels, featuring spacious interiors, high ceilings, and large glazing that allows for abundant natural light. The layout creates a seamless flow between indoor and outdoor spaces, with private verandas, a landscaped garden, and a swimming pool, ideal for both relaxation and entertaining.
Built with high-end specifications and energy-efficient design, the property includes a private lift, premium finishes, and modern systems, making it a standout luxury residence in one of Limassol’s most sought-after areas.
Boutique development (only 2 villas)
Panoramic sea & city views
Five-level architectural design
Spacious interiors
High ceilings
Large glazing / natural light
Private verandas
Private swimming pool
Private garden
Roof garden
Private lift
Energy efficiency class A
Underfloor heating
VRV air-conditioning system
High-end finishes
Quiet upscale residential area
Close to schools, shops, highway, and beach
Panoramic sea & city views
Five-level architectural design
Spacious interiors
High ceilings
Large glazing / natural light
Private verandas
Private swimming pool
Private garden
Roof garden
Private lift
Energy efficiency class A
Underfloor heating
VRV air-conditioning system
High-end finishes
Quiet upscale residential area
Close to schools, shops, highway, and beach
Mortgage Calculator
Amount Financed:
Mortgage Payments:
Annual cost of Loan:
Details
House:
Mansion Villa
Construction Stage:
Under Construction
Floor Number:
5
Bedrooms:
4
Bathrooms:
5
Furnished:
Unfurnished
Kitchen Type:
Open Plan
Covered Parking:
2
Areas
Internal Area:
377m²
Covered Verandas:
102m²
Garden Area:
259m²
Energy
Heating Type:
Autonomous Heating System
Cooling Type:
Autonomous Cooling System
Energy Efficiency Grade:
A
Features
Alarm:
Secure Door:
Elevator:
Private Swimming Pool:
Storage Space:
Utility room:
En suite:
Door Phone:
City View:
Split units provision:
Covered veranda:
Garden:
Roof garden:
Extra Features
Extra Features:
Boutique Development (only 2 Villas)
Panoramic Sea & City Views
Five-level Architectural Design
Spacious Interiors
High Ceilings
Large Glazing / Natural Light
Private Verandas
Private Swimming Pool
Private Garden
Roof Garden
Private Lift
Energy Efficiency Class A
Underfloor Heating
VRV Air-conditioning System
High-end Finishes
Quiet Upscale Residential Area
Close To Schools, Shops, Highway, And Beach
Details
House:
Mansion Villa
Construction Stage:
Under Construction
Floor Number:
5
Bedrooms:
4
Bathrooms:
5
Furnished:
Unfurnished
Kitchen Type:
Open Plan
Covered Parking:
2
Areas
Internal Area:
377m²
Covered Verandas:
102m²
Garden Area:
259m²
Energy
Heating Type:
Autonomous Heating System
Cooling Type:
Autonomous Cooling System
Energy Efficiency Grade:
A
Features
Alarm:
Secure Door:
Elevator:
Private Swimming Pool:
Storage Space:
Utility room:
En suite:
Door Phone:
City View:
Split units provision:
Covered veranda:
Garden:
Roof garden:
Extra Features
Extra Features:
Boutique Development (only 2 Villas)
Panoramic Sea & City Views
Five-level Architectural Design
Spacious Interiors
High Ceilings
Large Glazing / Natural Light
Private Verandas
Private Swimming Pool
Private Garden
Roof Garden
Private Lift
Energy Efficiency Class A
Underfloor Heating
VRV Air-conditioning System
High-end Finishes
Quiet Upscale Residential Area
Close To Schools, Shops, Highway, And Beach
