Filters
For Sale
Whole Floor Office with Mezzanine for Sale in Panagia, Nicosia
-
-
Enquiries
Property Description
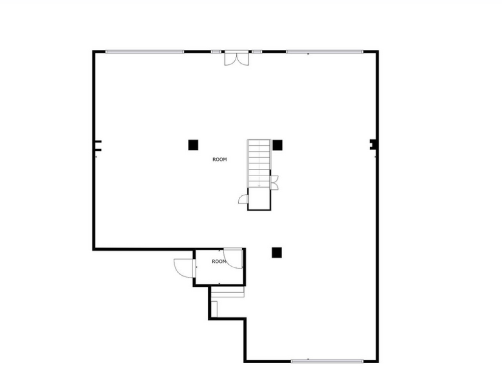
Whole-floor two-level office consisting of a ground-floor retail unit and a mezzanine on a mixed-used building.
The ground floor consists of a reception area and an open plan showroom, and the mezzanine consists of a kitchenette, two toilets, office spaces and an auxiliary storage area.
The ground floor consists of a reception area and an open plan showroom, and the mezzanine consists of a kitchenette, two toilets, office spaces and an auxiliary storage area.
Mortgage Calculator
Amount Financed:
Mortgage Payments:
Annual cost of Loan:
Details
City:
Palouriotissa
Office Type:
Whole Floor Office
Construction Stage:
Resale
Furnished:
Unfurnished
No. Of Floors In building:
4
Construction Year:
2003
Construction Type:
Concrete
Areas
Internal Area:
200m²
Covered Verandas:
136m²
Covered:
336m²
Energy
Heating Type:
Autonomous Heating System
Cooling Type:
Autonomous Cooling System
Details
City:
Palouriotissa
Office Type:
Whole Floor Office
Construction Stage:
Resale
Furnished:
Unfurnished
No. Of Floors In building:
4
Construction Year:
2003
Construction Type:
Concrete
Areas
Internal Area:
200m²
Covered Verandas:
136m²
Covered:
336m²
Energy
Heating Type:
Autonomous Heating System
Cooling Type:
Autonomous Cooling System
