Filters
For Sale
4 Bedroom House for Sale in Souni, Limassol
Enquiries
Property Description
This new 4 bedroom, 2 bathroom house for sale is a part of a new project of 6 houses, located in a tranquil area of Souni. Just 8 minutes drive uphill from the motorway, overlooking the city and Akrotiri peninsula, tucked in the pine tree forest and with a special micro-climate, Souni is getting more and more popular area in Limassol property market.
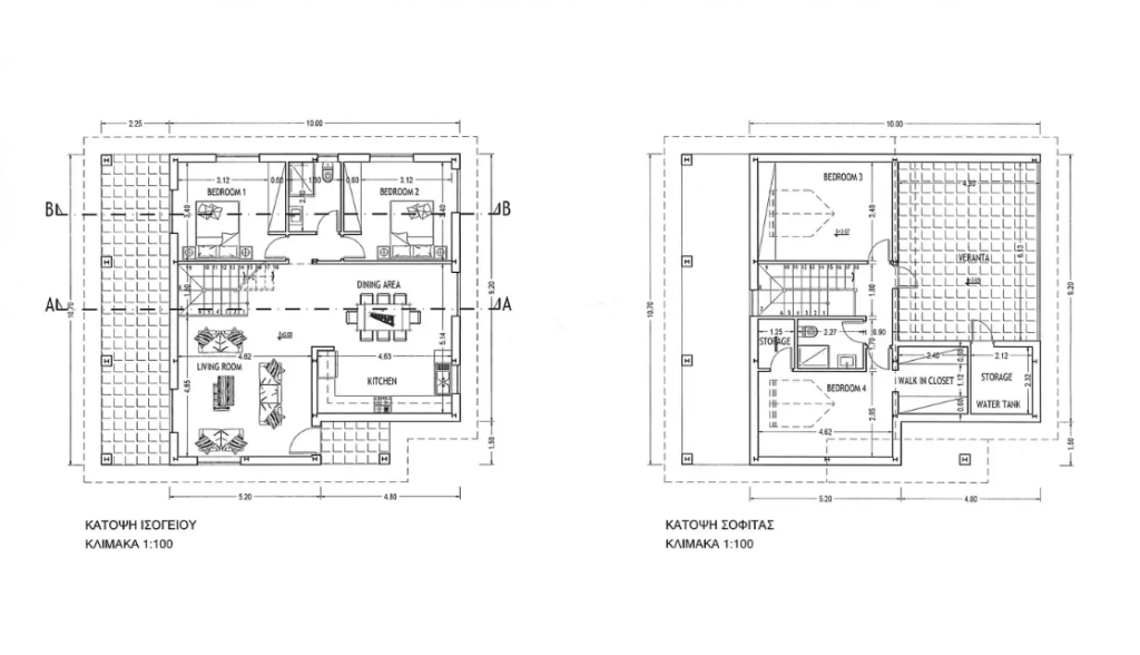
This 2 levels house is having total covered area of 170 sqm and it has a plot size of 500 sqm. On the ground floor is a kitchen/dining area, living room, 2 bedrooms, bathroom and covered veranda while the other 2 bedrooms, bathroom and uncovered rooftop veranda are on the upper floor. The Master bedroom is located on the first floor and features an en-suite bathroom and walk-in closet. The house also features:
Solar and electric water heating system.
1sqm paving around the house.
Ceramic tiles to all ground floors and bathrooms.
Topsoil garden preparation.
Provision for air conditioning in all rooms.(split units).
Provision for a heating system with radiators (electrical).
Provision for installation of photovoltaic panels.
There are some optional features also available such as a swimming pool 4m x 8m, air conditioning in all rooms (split units), photovoltaic panels with the inverter, and a covered parking place.
Delivery time is 12 months from signing a contract.
This 2 levels house is having total covered area of 170 sqm and it has a plot size of 500 sqm. On the ground floor is a kitchen/dining area, living room, 2 bedrooms, bathroom and covered veranda while the other 2 bedrooms, bathroom and uncovered rooftop veranda are on the upper floor. The Master bedroom is located on the first floor and features an en-suite bathroom and walk-in closet. The house also features:
Solar and electric water heating system.
1sqm paving around the house.
Ceramic tiles to all ground floors and bathrooms.
Topsoil garden preparation.
Provision for air conditioning in all rooms.(split units).
Provision for a heating system with radiators (electrical).
Provision for installation of photovoltaic panels.
There are some optional features also available such as a swimming pool 4m x 8m, air conditioning in all rooms (split units), photovoltaic panels with the inverter, and a covered parking place.
Delivery time is 12 months from signing a contract.
Covered Veranda/Balcony, Easy Access to Motorway, En-suite WC/Shower, Provision for photovoltaics, Provision for swimming pool, Provisions for A/C, Provisions for Central Heating, Walk-in Closet
Mortgage Calculator
Amount Financed:
Mortgage Payments:
Annual cost of Loan:
Details
City:
Souni
House:
Mansion Villa
Bedrooms:
4
Bathrooms:
2
Construction Year:
2026
Areas
Internal Area:
170m²
Plot Area:
500m²
Energy
Heating Type:
Central Heating
Features
En suite shower:
Central heating provision:
Split units provision:
Covered veranda:
Walk-in wardrobe:
Extra Features
Extra Features:
Covered Veranda/Balcony, Easy Access To Motorway, En-suite WC/Shower, Provision For Photovoltaics, Provision For Swimming Pool, Provisions For A/C, Provisions For Central Heating, Walk-in Closet
Details
City:
Souni
House:
Mansion Villa
Bedrooms:
4
Bathrooms:
2
Construction Year:
2026
Areas
Internal Area:
170m²
Plot Area:
500m²
Energy
Heating Type:
Central Heating
Features
En suite shower:
Central heating provision:
Split units provision:
Covered veranda:
Walk-in wardrobe:
Extra Features
Extra Features:
Covered Veranda/Balcony, Easy Access To Motorway, En-suite WC/Shower, Provision For Photovoltaics, Provision For Swimming Pool, Provisions For A/C, Provisions For Central Heating, Walk-in Closet
