Filters
For Sale
5 Bedrooms Villa for Sale in Potamos Germasogeia, Limassol
Enquiries
Property Description
Level of living in the property gets extremely high thanks to advanced engineering technologies, such as "smart house" systems of new generation, warm floors (water heating technologies) throughout the house, VRV-system of central air-conditioning and many more.
A magnificent contemporary villa located in the most prestige area of Limassol - Potamos Yermasoyia, 250 meters from the shore of the Mediterranean Sea with its sandy beaches and famous Dasudi park with eucalyptus trees.
Calm neighbourhood atmosphere combined with closeness to the entire urban infrastructure, which provides excellent conditions as for recreation, as for comfortable family living.
This unique property was designed by the most famous Architectural Bureau for Cyprus under the leadership of Mr. Panos Panagiotou - a long-serving director of the worlds largest architectural Scott-Browrigg for many years and besides this taught architecture courses at leading British universities - UCL, Metropolitan.
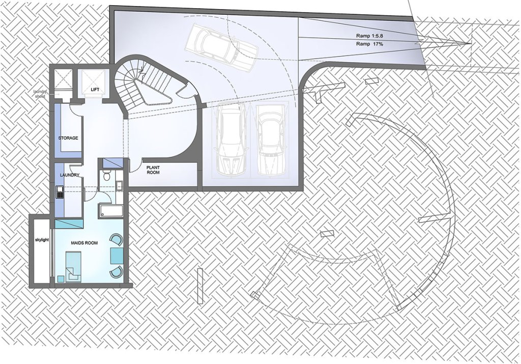
Underground garage for 3 cars, a bedroom with WC and shower for maid, laundry room and other technical rooms
Covered area - 600 sq.m.
Number of floors - 3 + roof garden
Number of bedrooms - 4 + office
Internal Covered - 508,58 m2
Covered Veranda - 85,64 m2
Roof Garden - 88 m2
Uncovered Veranda - 120,19 m2
1st Floor - kitchen, dining room, two living areas, office, guest toilet
2nd Floor - Hall, 4 bedrooms with wardrobes with ensuite bathrooms
3rd Floor - Lounge-bar area
A magnificent contemporary villa located in the most prestige area of Limassol - Potamos Yermasoyia, 250 meters from the shore of the Mediterranean Sea with its sandy beaches and famous Dasudi park with eucalyptus trees.
Calm neighbourhood atmosphere combined with closeness to the entire urban infrastructure, which provides excellent conditions as for recreation, as for comfortable family living.
This unique property was designed by the most famous Architectural Bureau for Cyprus under the leadership of Mr. Panos Panagiotou - a long-serving director of the worlds largest architectural Scott-Browrigg for many years and besides this taught architecture courses at leading British universities - UCL, Metropolitan.
Underground garage for 3 cars, a bedroom with WC and shower for maid, laundry room and other technical rooms
Covered area - 600 sq.m.
Number of floors - 3 + roof garden
Number of bedrooms - 4 + office
Internal Covered - 508,58 m2
Covered Veranda - 85,64 m2
Roof Garden - 88 m2
Uncovered Veranda - 120,19 m2
1st Floor - kitchen, dining room, two living areas, office, guest toilet
2nd Floor - Hall, 4 bedrooms with wardrobes with ensuite bathrooms
3rd Floor - Lounge-bar area
Air Conditioning, Covered Garage, Covered parking, Covered Veranda/Balcony, Infinity pool, Laminated Parquet Floor, Mature Landscaped Gardens, Modern design, Private Swimming Pool, Quiet Location, Roof garden, Roof Terrace, Shops & Amenities Nearby
Mortgage Calculator
Amount Financed:
Mortgage Payments:
Annual cost of Loan:
Details
City:
Potamos Germasogeias
House:
Mansion Villa
Bedrooms:
5
Bathrooms:
3
Floor Type:
Parquet
Construction Year:
2019
Areas
Internal Area:
595m²
Plot Area:
690m²
Features
Private Swimming Pool:
Landscaped gardens:
Covered veranda:
Garden:
Roof garden:
Extra Features
Extra Features:
Air Conditioning, Covered Garage, Covered Parking, Covered Veranda/Balcony, Infinity Pool, Laminated Parquet Floor, Mature Landscaped Gardens, Modern Design, Private Swimming Pool, Quiet Location, Roof Garden, Roof Terrace, Shops & Amenities Nearby
Details
City:
Potamos Germasogeias
House:
Mansion Villa
Bedrooms:
5
Bathrooms:
3
Floor Type:
Parquet
Construction Year:
2019
Areas
Internal Area:
595m²
Plot Area:
690m²
Features
Private Swimming Pool:
Landscaped gardens:
Covered veranda:
Garden:
Roof garden:
Extra Features
Extra Features:
Air Conditioning, Covered Garage, Covered Parking, Covered Veranda/Balcony, Infinity Pool, Laminated Parquet Floor, Mature Landscaped Gardens, Modern Design, Private Swimming Pool, Quiet Location, Roof Garden, Roof Terrace, Shops & Amenities Nearby
