Filters
For Rent
Building with Offices for Rent in Agias Filaxeos, Limassol
-
-
Enquiries
Property Description
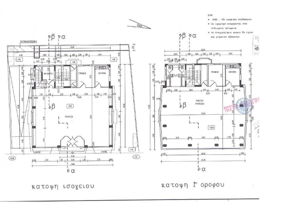
Commercial building for rent, located in Agias Filaxeos area, consists of 2 floors and basement, unfurnished, fully air-conditioned.
Ground floor has 1 separate office rooms, separate kitchen and server room.
1st floor has 1 separate office, 2 WC and separate kitchen.
Basement has a parking space for 7 cars.
Ground floor has 1 separate office rooms, separate kitchen and server room.
1st floor has 1 separate office, 2 WC and separate kitchen.
Basement has a parking space for 7 cars.
Basement Floor 400m2, raised floors and air conditioning.
Mortgage Calculator
Amount Financed:
Mortgage Payments:
Annual cost of Loan:
Details
City:
Agia Fyla
Office Type:
Entire Building Office
Furnished:
Unfurnished
Covered Parking:
7
Uncovered Parking:
1
No. Of Floors In building:
2
Office Spaces:
0
Office Layout:
Open Plan
Floor Type:
Tiles
Renovation Year:
0
Areas
Internal Area:
500m²
Energy
Heating Type:
Autonomous Heating System
Cooling Type:
Autonomous Cooling System
Features
Basement:
Extra Features
Extra Features:
Basement Floor 400m2, Raised Floors And Air Conditioning.
Details
City:
Agia Fyla
Office Type:
Entire Building Office
Furnished:
Unfurnished
Covered Parking:
7
Uncovered Parking:
1
No. Of Floors In building:
2
Office Spaces:
0
Office Layout:
Open Plan
Floor Type:
Tiles
Renovation Year:
0
Areas
Internal Area:
500m²
Energy
Heating Type:
Autonomous Heating System
Cooling Type:
Autonomous Cooling System
Features
Basement:
Extra Features
Extra Features:
Basement Floor 400m2, Raised Floors And Air Conditioning.
